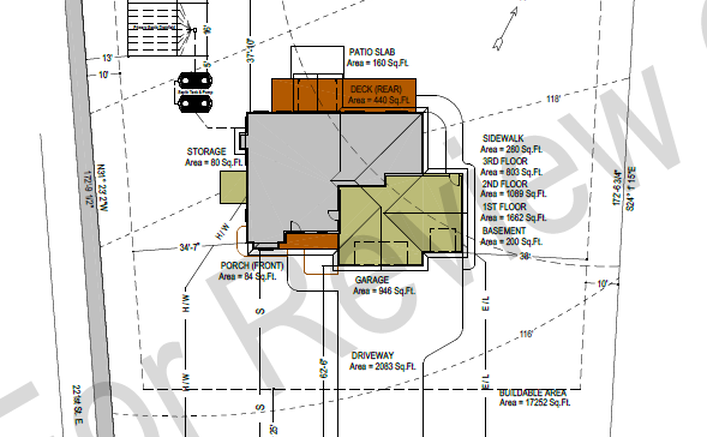
Site Plan

Site Plan describing the dimensions of parcel, building setbacks, impervious surface calculations and floorplan footprint.
4 hours | $500
Contact us to Schedule.
Cancellation Policy: Please contact us within 24 hours from your scheduled site visit to avoid cancellation charges.
